Lokalplanen giver mulighed for at etablere boligbebyggelse i op til 3½ etager, med højder, der overordnet set svarer til den eksisterende boligbebyggelse, der ligger på Hjertingvej 50-62.
Byggeriet skal opføres med rødlige teglsten som den primære facadebeklædning. Tage skal ligeledes beklædes med rødlig tegl og skal udformes som symmetriske saddeltage. Dette svarer til den boligbebyggelse, der ligger nærmest lokalplanområdet. Der er mulighed for at etablere altaner, herunder altangange mod nord. Dette er hensigtsmæssigt, da der på den måde er mulighed for at etablere mindre boligenheder uden at der skal bruges unødigt meget areal til trapper og elevatorer.
Eksempel på facader som det er muligt at opføre inden for lokalplanens bestemmelser.
Det er intentionen, at lokalplanen herved medvirker til, at områdets eksisterende og nye bebyggelse opfattes som en samlet helhed, der løfter områdets karakter.
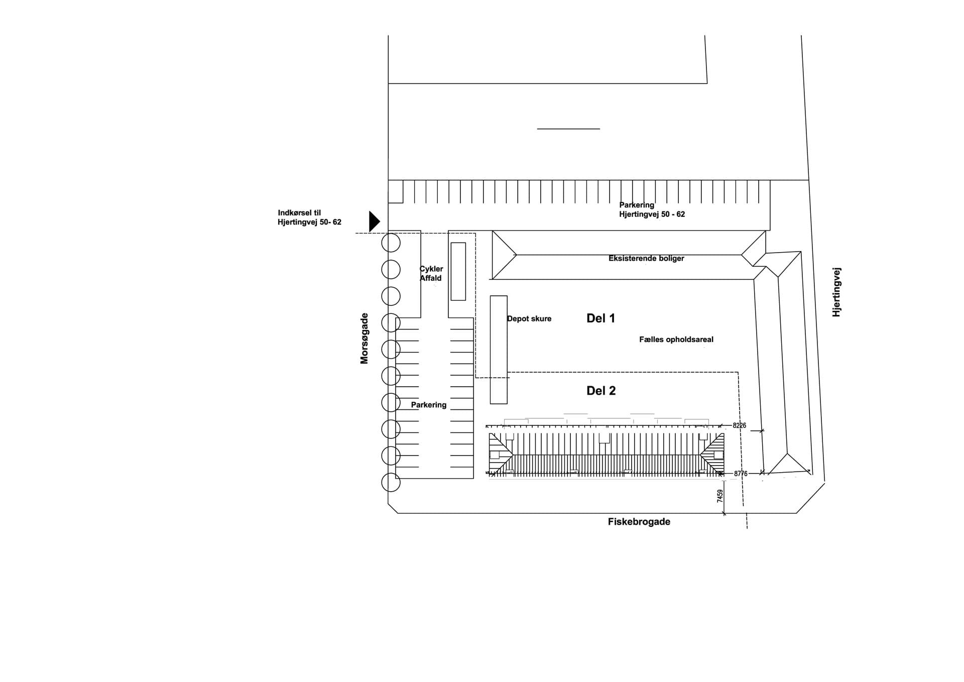
Boligbebyggelsen skal placeres inden for byggefelt 1, der ligger ud mod Fiskebrogade. Herved sikres det, at der er bedst mulig afstand til den eksisterende bebyggelse og at der kan skabes sammenhængende og velbeliggende udeopholdsarealer mellem bygningerne. Byggefeltet svarer til placeringen af den bebyggelse, der er udført støjberegninger på i forbindelse med lokalplanens udarbejdelse.
Uden for byggefeltet er der udelukkende mulighed for at etablere lave småbygninger som udhuse, cykelskure og lignende. Disse bygninger skal dog placeres uden for det område, der er forbeholdt som udendørs opholdsareal. Herved sikres det, at der er plads til større sammenhængende friarealer.
Den syd-vestlige del af lokalplanområdet friholdes for bebyggelse, da der på dette område er risiko for oversvømmelse jævnfør kommunens kortlægning af klimapåvirkninger.
Illustrationsplan af bebyggelse, der er mulighed for at opføre inden for lokalplanens bestemmelser.


