Lokalplanen giver mulighed for bebyggelse i 8 etager med opholdsareal på taget i form af tagterrasse. På grund af bygningshøjden er der tale om et markant byggeri i Esbjergs indre by.
Med lokalplanen opsættes der en række retningslinjer for udformningen og anvendelsen af bebyggelse og udearealer i området. Der lægges vægt på, at lokalplanbestemmelserne sikrer, at planen medvirker til at styrke området i forhold til kommunens overordnede strategier. Herunder den nyeste planstrategi, der sigter på fortætning og bosætning i den centrale del af Esbjerg. Lokalplanen giver mulighed for videre bearbejdning og tilpasninger af det konkrete projekt i anlægsfasen efter vedtagelse af lokalplanen.
I de følgende afsnit redegøres der nærmere for lokalplanens bestemmelser i forhold til de enkelte emner i planen.

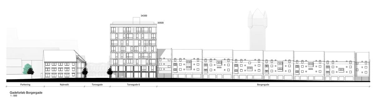
Opstalt af et projekt med et omfang, der svarer til lokalplanens muligheder. Borgergade.

Opstalt af et projekt med et omfang, der svarer til lokalplanens muligheder. Borgergade.

Opstalt af et projekt med et omfang, der svarer til lokalplanens muligheder. Torvegade.

Opstalt af et projekt med et omfang, der svarer til lokalplanens muligheder. Torvegade.
