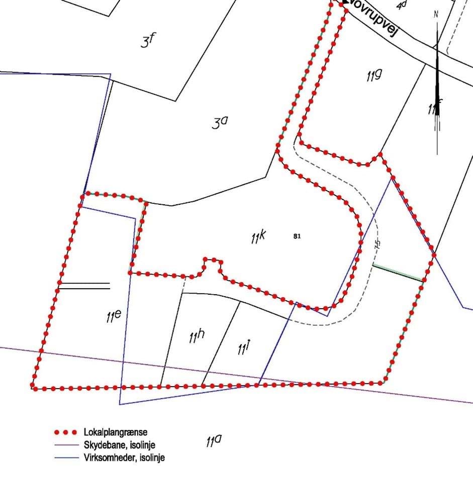
Lokalplanområdet er i hht. kommuneplanens udpegninger delvist omfattet af støj-ISO linjerne fra virksomheder og skydebane. Fra lokalplanområdets sydlige afgrænsning er der ca. 300 meter til nærmeste virksomhedsskel, og der er ca. 2100 meter til skydebanen.
ISO-linjerne er udtryk for planlægningsmæssige forhold, men ikke de faktiske støjudbredelser eller miljøgodkendelser. Indenfor støj-ISO-linjer tillades det ikke, at der etableres støjfølsom anvendelse, medmindre det i henhold til de til enhver tid gældende love, vejledninger og lignende godtgøres, at grænseværdierne med f.eks. støjdæmpende foranstaltninger kan respekteres, og at det i øvrigt ikke er en belastning over for den tilladte aktivitet, der er baggrund for støj ISO-linjen.
Inden for lokalplanområdet planlægges der for støjfølsom anvendelse i form af boliger. Der skal foretages de nødvendige foranstaltninger så grænseværdier for støj overholdes.
Det skal endvidere sikres, at opholdsarealerne ikke udsættes for støj, der overstiger det tilladte jf. den til enhver tid gældende miljølovgivning.
Planområdet vil ikke ligge tættere på virksomheder mod syd eller skydebanen mod syd end nuværende beboelsesejendomme. De vejledende støjgrænser for lokalplanområdet er 45/40/35 dB hhv. dag/aften/nat., vurderes, blive overholdt, og lokalplanen ikke vil være til hinder for nuværende aktiviteter hos eksisterende erhverv eller aktiviteter på skydebanen.

Kortbilag med udpegning af ISO-linjer for støj, herunder for skydebane og virksomheder.

Kortbilag med udpegning af ISO-linjer for støj, herunder for skydebane og virksomheder.
